Tủ đông gió của Tân Long có khả năng giảm nhiệt độ nhanh chóng và cấp đông nhiều loại nguyên liệu thực phẩm, do đó nó có thể loại bỏ tình trạng cấp đông chậm.
Tủ cấp đông gió thường được sử dụng trong các nhà máy, doanh nghiệp vừa nhỏ và trung bình. Dùng để cấp đông các sản phẩm thủy hải sản, thịt… dạng rời khối lượng nhỏ.

1. Nguyên lý cấp đông:
Các sản phẩm cần cấp đông để bảo quản như thịt, cá, tôm được đặt vào khay mỏng và đặt trên xe cấp đông được làm lạnh nhờ gió tuần hoàn với tốc độ lớn, nhiệt độ rất thấp – 35oC ÷ – 40 oC.
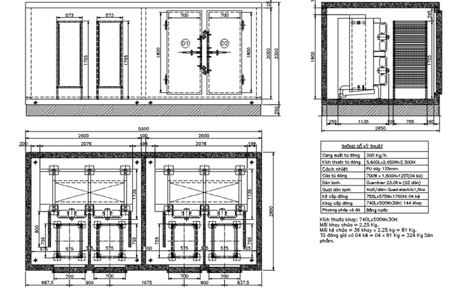
2. Cấu tạo của tủ cấp đông gió:

Bao gồm :
– Vỏ tủ đông gió.
– Dàn lạnh cấp đông gió.
– Khay cấp đông.
– Kệ cấp đông.
Chi tiết:
- Tủ đông gío mới 100% do VN sản xuất.
- Tủ đông gío có thể làm đông được nhiều loại thủy hải sản khác nhau với số lượng lớn như: thịt, mực, cá…
- Tường, trần và đáy tủ đông gío bọc inox hai mặt trong và ngoài dày 0.45mm, cách nhiệt bằng PU dầy 125 mm tỷ trọng 40-42 kg/m3.
- Cửa kho kiểu bản lề, cách nhiệt bằng Polyurethane dày 125mm, tỷ trọng 40-42kg/m3, hai mặt bằng inox dày 0.5mm.
- Bản lề và khoá cửa bằng inox, có tay khoá an toàn chống kẹt người bên trong kho.
- Joint loại dàn hồi trong môi trường nhiệt độ âm và có tuổi thọ cao.
- Khung cửa có điện trở sưởi chống dính Joint.
- Tủ đông gió được trang bị: 02 bộ đèn kho lạnh, 01 van thông áp, 01 đồng hồ báo nhiệt độ.
- Xe khay làm bằng inox kích thước 1400x740x1600 (mm)
- Khay nhôm 5 kg cấp đông.
3. Sơ đồ nguyên lý hệ thống lạnh:
Chu trình hệ thống lạnh 2 cấp dùng bình trung gian có ống xoắn.
Bao gồm : Máy nén 2 cấp, tủ cấp đông gió, tháp giải nhiệt + bình ngưng tụ hoặc dàn ngưng tụ kiểu bay hơi, Bình trung gian, bình thấp áp, bình tách dầu, bơm dịch, hệ thống đường ống, hệ thống điện động lực và điều khiển.